当前位置: 建筑一生 » 资料收集 » 建筑图纸 » 正文

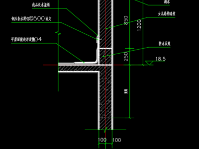
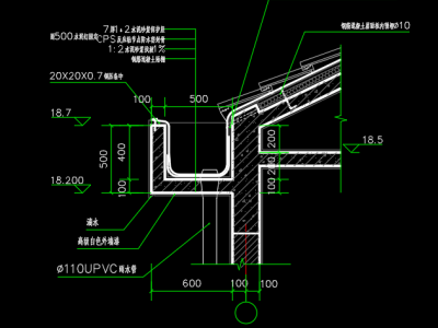
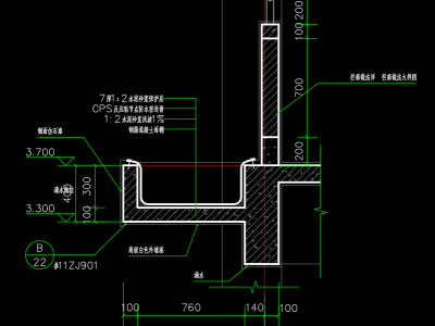
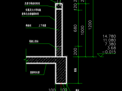
楼梯间栏杆CAD大样图丨CAD做法

图纸名称:楼梯间栏杆CAD大样图丨CAD做法
CAD版本:CAD2018

图纸大样

楼梯间栏杆CAD大样图丨CAD做法

下载地址

本文附件下载地址


扫描二维码,打开微信小程序【工程计算器CoYis】
点击 (验证码) 按钮,即可获取。
输入验证码 查看隐藏内容:

weixin

验证码获取教程(如您不知如何操作,请点击

声明:建筑一生网提供的所有资料均来自互联网下载,纯属学习交流。如侵犯您的版权请联系我们,我们会尽快整改。请网友下载后24小时内删除!

联系方式:发送邮件coyis@qq.com

如有侵权,请联系删除 建筑一生 » 楼梯间栏杆CAD大样图丨CAD做法
评论 (0)

本站公众号

contact

建工计算器

contact