本次为大家共享图集是06SJ803 民用建筑工程室内施工图设计深度图样.PDF,实施日期为2006年6月1日。
new-coyis

内容简介
本图集根据《建筑工程设计文件编制深度规定》2008年版(以下简称“《深度规定》”)及修编中的《房屋建筑制图统一标准》GB/T50001、《建筑制图标准》GB/T50104的报批稿编制的,适用于建筑室内装修设计。
由于“《深度规定》”中,对室内设计缺乏具体规定。中国建筑装饰协会与中国建筑标准设计研究院根据国内建筑装饰行业发展情况,在经过大量调研、座谈交流、广泛征求意见基础上,组织专业人员通过本图集,在“《深度规定》”基础上,补充完善室内施工图设计深度的文字要求,并本着方便施工、删繁就简、表达清楚、保证质量的原则,采用图文并茂的编制方式,选择工装、家装两套具有代表性的工程实例,绘制了两套完整的室内设计施工图样图,以求起到统一建筑装饰行业室内设计图面表达方法与规范室内设计文件编制深度的作用,从而满足建筑装饰行业的发展及装饰市场管理需求,使行业更加规范有序、科学的发展。
规范目录
目录 1
编制说明 2
制图说明 3
深度图样
施工图设计文件说明 9
图纸目录说明 10
施工图设计说明 12
平面图编制说明 19
立面图编制说明 22
剖面图编制说明 23
详图编制说明 24
公共建筑室内施工图样图
剧场施工图封面 26
图纸目录 27
施工图设计说明 28
室内装修材料配置做法编号表 33
室内装修材料表 34
平面分区图 35
C区公共空间首层平面布置图 36
C区剧场观众厅平面布置图 37
C区剧场平面局部放大图 38
C区剧场包厢及夹层平面布置图 39
C区剧场包厢底部顶平面图 40
C区剧场观众厅及剧场夹层顶平面图 41
C区剧场立面图①、③反 42
C区剧场立面图② 43
C区剧场立面图④ 44
C区剧场A-A剖面图 45
C区门窗统计表 46
C区门表 47
C区门节点详图 48
化妆台节点详图 49
C区首层2#/6#卫生问平面图 50
C区首层2#/6#卫生间立面图 51
C区1#楼梯平面图 52
C区1#楼梯Ⅰ-Ⅰ剖面图 53
C区1#楼梯节点详图 54
家装室内施工图样图
家装施工图封面 55
图纸目录 56
施工图设计说明 57
门统计表及门立面图 61
室内装修材料配置表 62
室内装修材料做法表 63
家具统计表(一) 64
灯具统计表(一) 65
卫生洁具及配件统计表 66
装饰饰物统计表 67
现状平面图 68
隔墙定位图 69
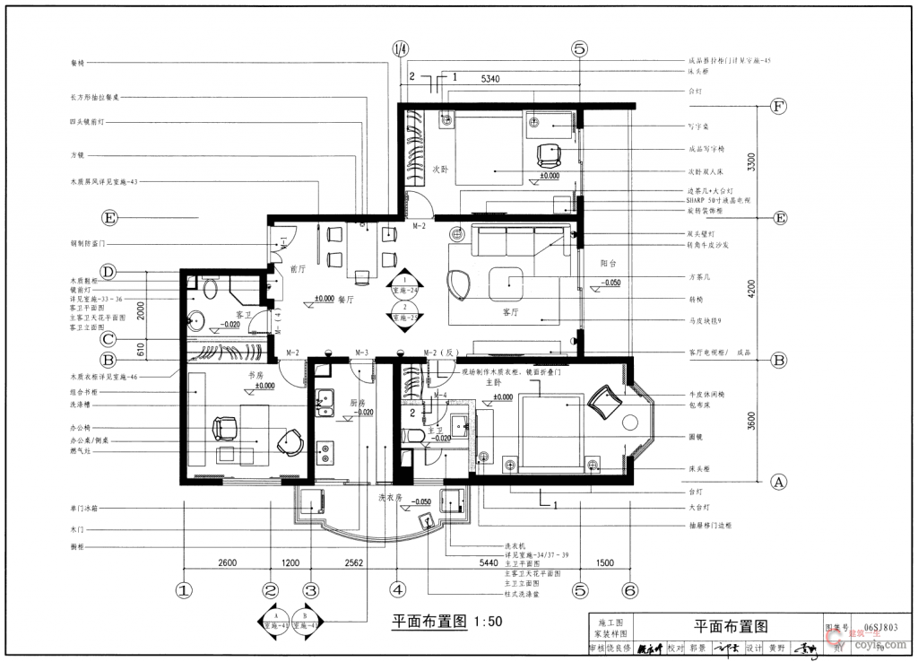
平面布置图 70
家具平面布置图 71
地面材料终饰图 72
天花平面图 73
餐厅天花平面图 74
①立面图 75
②立面图 76
1-1剖面图 77
2-2剖面图 78
客卫平面图 79
主客卫天花平面图 80
客卫A、B立面图 81
客卫C、D立面图 82
主卫平面图 83
主卫A、B立面图 84
主卫C、D立面图 85
卫生间节点详图 86
厨房A、B立面图 87
电视背景墙立、剖面图 88
玄关木质屏风立、剖面图 89
节点详图(一) 90













