- 图集名称:《22G815:建筑结构抗浮锚杆》
- 实施日期:2022年10月1日
- 被替标准号:新编图集
- 图集分类:基础图集、地基图集、抗浮图集
内容简介
本图集适用于新建、改建及扩建的工业与民用建筑和一般构筑物,可作为抗浮锚杆结构设计选用及参考图集,施工人员可按图施工。
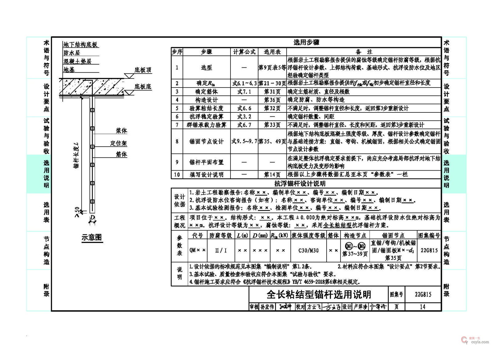
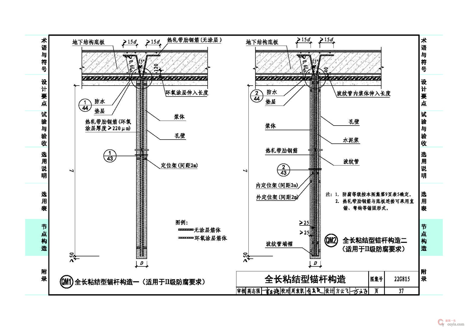
本图集涵盖全长粘结型锚杆、拉力型预应力锚杆、压力型预应力锚杆、扩体锚杆等类型,包括设计要点、试验及验收要求、设计步骤、设计总说明、计算选用表、防腐防水构造详图、封锚节点、计算示例等内容,其中设计要点全面涵盖了材料、承载力、杆体、耐久性及锚固节点等设计内容。
设计人员可按照本图集推荐的步骤,通过计算法或查表法进行抗浮锚杆设计,设计结果及构造详图编号可汇总至本图集给出的标准格式总说明表格中,形成施工图文件,为设计人员节省了大量承载力计算、总说明编制及详图绘制的时间,提高了设计效率,施工人员按本图集即可施工。
本图集编制过程中参考了大量国内外相关规范及工程案例,并在全国范围内进行了广泛的调研,参考了工程中常用的抗浮锚杆型式的设计计算、构造做法及技术要求,方便设计施工人员根据实际情况进行选用。
样张预览
下载地址
本文附件下载地址
验证码获取教程(如您不知如何操作,请点击)
声明:建筑一生网提供的所有资料均来自互联网下载,纯属学习交流。如侵犯您的版权请联系我们,我们会尽快整改。请网友下载后24小时内删除!
联系方式:发送邮件至 coyis@qq.com
















