2017年3月31日,国内首个公共建筑的装配式装修样板在中国建筑设计院的创展中心成功推出。这套样板是中国院与北京和能人居科技有限公司共同研发,开创了一条装配式装修技术应用于公共建筑的新思路。样板展示的装配式装修技术,贯彻结构与内装管线分离的理念,全面采用干式工法施工,实现了装配化装修,达到了质量好、施工快、无污染的效果。
样板包括1间小办公室和半间会议室。以某实际工程为原型,按照真实尺寸进行搭建。

▲ 展厅内景

▲ 展厅平面

▲ 会议室

▲ 小办公室
装配式装修技术
创展中心公建样板间结合和能人居科技的装配式装修八大系统,针对公共建筑的特点进行升级,主要包括集成地面系统、集成墙面系统、集成吊项系统、集成设备和管线系统和生态门窗系统。
架空构造——架空地面高度100,与常规地面高度相同。架空层下可以敷设管线。
干式工法——取消垫层,无抹灰。
面层材料——面层材料可自由选择采用地毯、木地板、PVC地面等。
现场快装——地板可以快速拼装,方便拆卸,利于维修。
█ 集成墙面系统
隔墙采用轻钢龙骨,填充岩棉,表面是一体化带饰面的涂装板,省了表面贴壁纸或刷涂料的工序,既省工又环保。
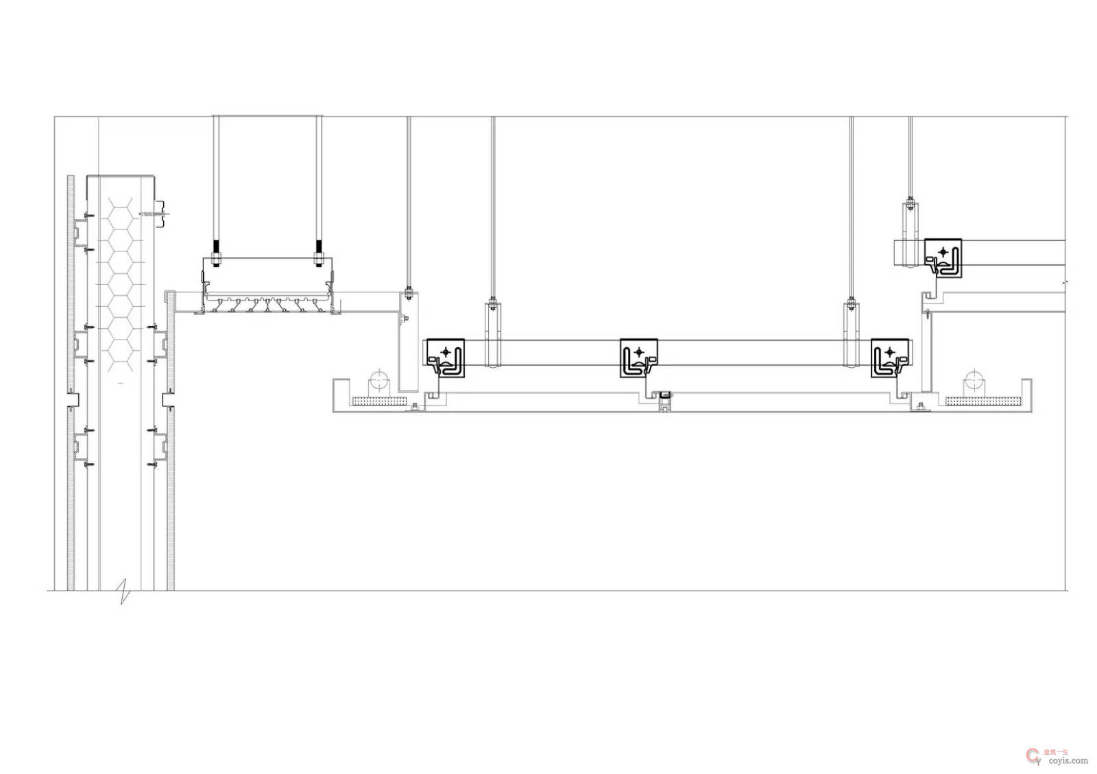
█ 集成吊顶系统
▲ 集成吊顶系统剖面图
集成化的吊顶安装方式,适用于多种室内顶面安装材料(高精石膏板、矿棉板、铝板、PVC、软膜天花等),实现了真正的顶面材料与设备系统的集成设计。
优势:免除涂刷工序,实现快速安装,方便后期维修。
█ 生态门窗系统
▲ 生态门窗系统示意
门窗在工厂完成。门扇与铰链锁孔门锁的集成制造,门套与合页的集成制造。现场安装使用螺丝刀拧好即可。1个螺丝刀,14个螺丝钉,完成门的安装。
█ 集成设备和管线系统
▲ 集成设备和管线系统示意
管线走在地面架空层、吊顶和轻质隔墙内,可实现快速安装和易拆更换。在办公室内做了与快装板材配套的集成面板模块,可以方便电气管线的更换、增加和维修。
装配式内装材料
样板间中,除部分木质吸音板外,所有材料均为A级不燃材料。具体见下图。
▲ 隔墙——钢龙骨和铝合金龙骨,填岩棉板
施工工艺
█ 龙骨搭建
▲ 龙骨施工现场
█ 地板铺设
▲ 地板施工现场
█ 吊顶安装
▲ 吊顶施工现场
█ 门窗安装
▲ 门施工现场
构造设计细节
█ 典雅大气通高门——3米高与室内净高相同(个人感觉丑死)
█ 隐蔽式设备带——将灯具、散流器、回风口等设备集成起来,进行隐蔽化设计,提高空间的整洁程度
█ 贴心美观的挂镜线——在2.4米高度设挂镜线,美观实用,减少了切板,节约了材料
施工周期
由于采用了现场组装的方式,样板间的搭建过程十分顺利,由4个工人,只用了15天就搭建完成。
研发背景
装配式建筑是采用预制部品部件在现场装配而成的成品建筑,由结构系统、外围护系统、内装系统和设备管线系统组成。按照相关政策和标准的要求,装配式建筑应采用全装修。
一般的装修方式是在现场对原材料进行加工,进行施工的装修方式,存在大量的现场加工、大量的湿作业,施工质量完全依赖工人手艺,工期一般都很长。装配式装修是一种全新的装修方式,没有湿作业,采用干式工法,部品部件在工厂预先制作完成,由产业工人在现场进行组装,质量好,安装速度快,无污染。
北京市保障房中心建设的多个公租房项目,都采用了装配式装修技术。郭公庄一期公租房项目,中国院与和能人居科技合作,采用了装配式装修2.0技术,已经完成了1452套公租房的装配式装修。
▲ 郭公庄一期公租房项目
继成功地在住宅领域应用之后,中国院与和能人居科技一起,研究装配式装修技术在公共建筑领域的应用方案,尝试解决公建装修耗时长、成本高、难维护、易污染的难题。中国院的装配建筑院、环艺院室内所、和能人居科技三个团队紧密合作,从设计、技术、材料、管理等多方面进行深入研究,历时三个月,对关键技术和产品反复尝试和试验,终于成功推出代表国内领先水平的公共建筑装配式装修的样板。







































