- 规范/图集名称:《22G101-2:混凝土结构施工图平面整体表示方法制图规则和构造详图(现浇混凝土板式楼梯)》
- 实施日期:2022年5月1日
- 被替标准号:替代16G101-2
- 规范/图集分类:平法图集
内容简介
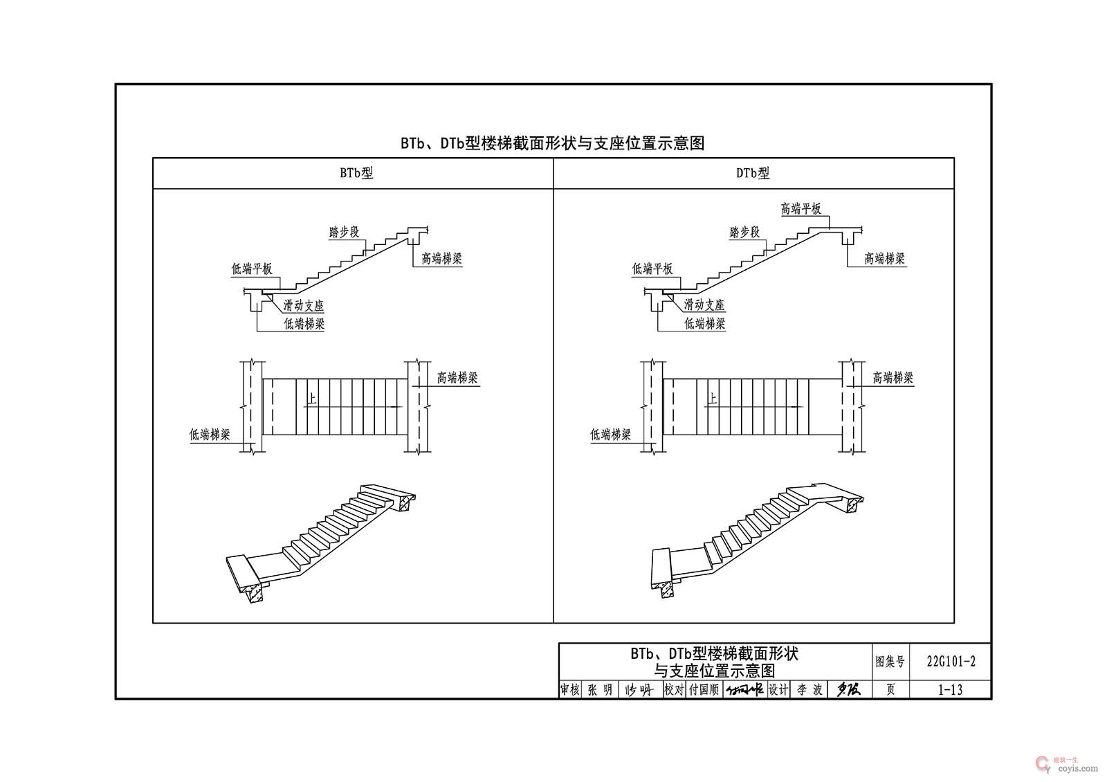
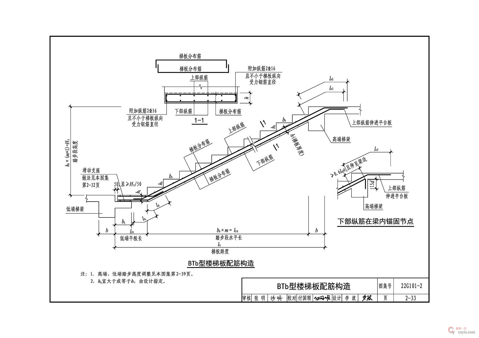
本图集是对16G101-2的修编。本次修编依据全文强制性工程建设规范等现行标准,结合近年来工程实践对图集提出的反馈意见,对图集原有内容进行了系统的梳理、修订,同时考虑实际工程应用需要,新增了梯板由踏步段和低端平板构成的带滑动支座的BTb型,以及梯板由低端平板、踏步段和高端平板构成的带滑动支座的DTb型板式楼梯等内容。
本图集适用于抗震设防烈度为6~9度地区的现浇钢筋混凝土板式楼梯。图集中现浇混凝土板式楼梯包括14种类型,其中AT~GT用于不参与主体结构抗震计算的楼梯,ATc用于框架中参与主体结构抗震计算的楼梯,ATa、ATb、BTb、CTa、CTb、DTb用于采取滑动措施减轻楼梯对主体(框架)影响的楼梯。
样张预览
- 22G101-2
- 22G101-2
- 22G101-2
- 22G101-2
- 22G101-2
- 22G101-2
- 22G101-2
下载地址
本文附件下载地址
验证码获取教程(如您不知如何操作,请点击)




















