- 规范/图集名称:《22G101-3:混凝土结构施工图平面整体表示方法制图规则和构造详图(独立基础、条形基础、筏形基础、桩基础)》
- 实施日期:2022年5月1日
- 被替标准号:替代16G101-3
- 规范/图集分类:平法图集
内容简介
本图集是对16G101-3《混凝土结构施工图平面整体表示方法制图规则和构造详图(独立基础、条形基础、筏形基础及桩基承台)》的修编。本次修编按《工程结构通用规范》GB 55001-2021、《建筑与市政工程抗震通用规范》GB55002-2021、《建筑与市政地基基础通用规范》GB55003-2021、《混凝土结构通用规范》GB 55008-2021等强制性工程建设规范,结合近年来工程实践对图集提出的反馈意见,对图集内容进行了系统地梳理、修订。
本图集适用于各类结构类型下现浇混凝土独立基础、条形基础、筏形基础(分为梁板式和平板式)及桩基础施工图设计。
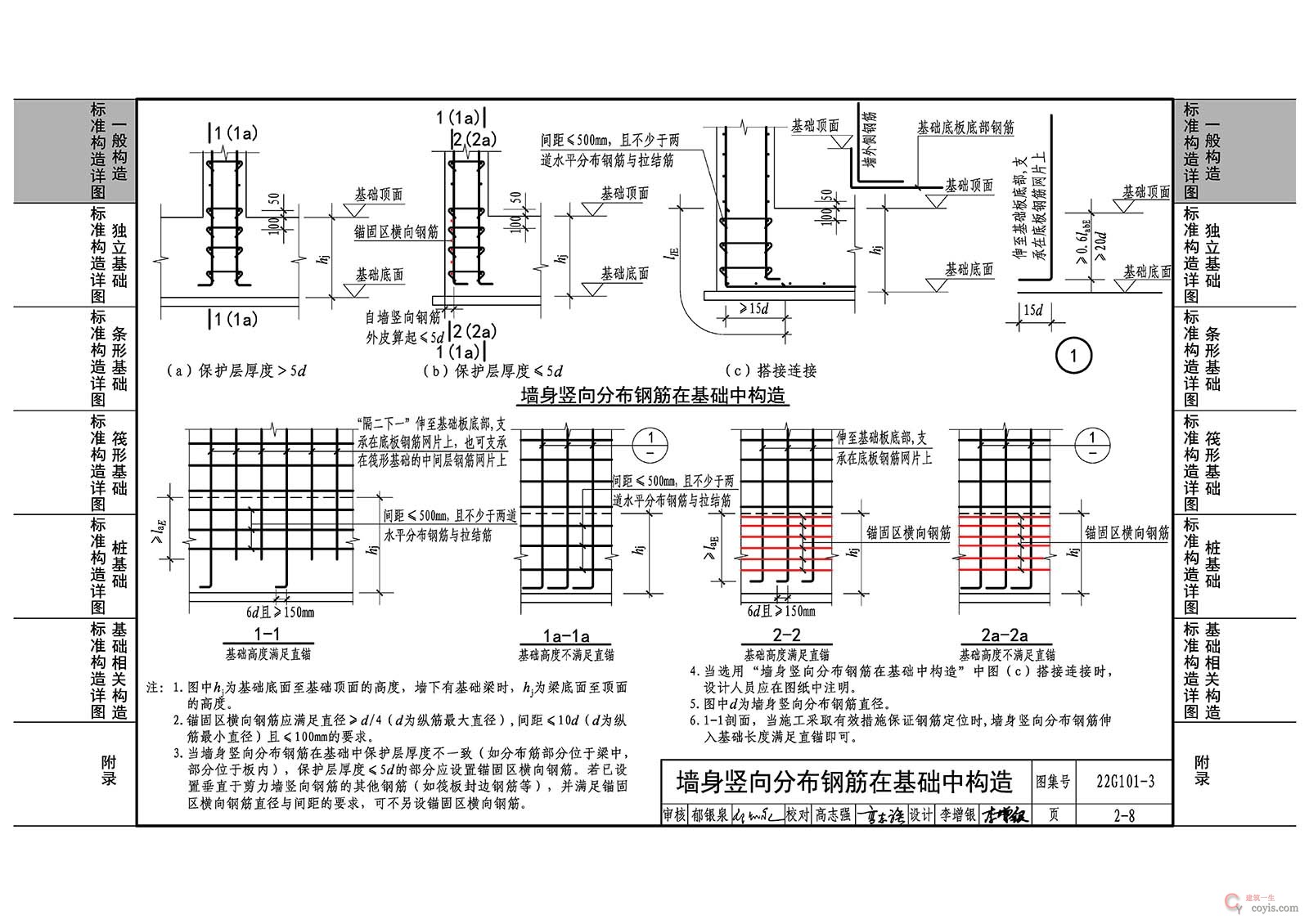
图集中包括常用的现浇混凝土独立基础、条形基础、筏形基础(分为梁板式和平板式)及桩基础的平面整体表示方法制图规则和构造详图两大部分内容。
样张预览
- 22G101-3
- 22G101-3
- 22G101-3
- 22G101-3
- 22G101-3
- 22G101-3
- 22G101-3
- 22G101-3
- 22G101-3
- 22G101-3
- 22G101-3
下载地址
本文附件下载地址
验证码获取教程(如您不知如何操作,请点击)

























非常好