
© 雷坛坛
在OPEN设计的上海青浦平和双语学校校园中,有一座看起来很轻的建筑,如同两个暖白色的气囊,漂浮在首层透明的玻璃盒子上。两个“气囊”里分别包裹着风雨操场和游泳池,首层玻璃盒子是学校的食堂。建筑师其放置于靠近北侧城市道路的位置,以便在学校放假的时候面向周边社区开放,为快速发展的新城提供共享的体育设施。

© 陈颢
举重若轻
体育馆、游泳池和食堂是校园里最大体量的3个空间。为了不让这栋建筑的大体量对校园空间造成过大的压迫感,建筑师希望能“举重若轻”。“气囊”柔软的颜色和形状、通透明亮的首层和中庭、不规则穿孔铝板表皮上若隐若现的图案、和由张拉膜与阳光板组合成的半透明墙体,将巨大的重力和体量巧妙地消解掉。整座建筑里充满了阳光、空气和水,成为校园中最具活力的场所,为孩子们提供能量。

© 吴清山

© 吴清山
风雨操场
东侧较大的“气囊”是一个多功能的风雨操场,这里可以作为篮球、排球、羽毛球、跆拳道、击剑等运动的场地,旁边还分布有一些小型健身房。其内部空间明亮干净,大跨度的空间没有一根柱子,放眼望去只有温暖的竹板饰面、深灰色的防撞墙和两侧可伸缩的阶梯座位。太阳光经过长条形天窗的过滤进入室内,白天完全不需要人工照明,让学生们沐浴在充足的漫射光下,进行丰富多彩的室内活动。

© 吴清山

© 雷坛坛

© 雷坛坛

© 雷坛坛
游泳馆
西侧较小的“气囊”是游泳馆,其中设置了5条25米泳道,可以承载日常训练和小型赛事。顶部的天窗和南北立面采用的张拉膜和阳光板双层幕墙体系,让整个室内充满了舒适的自然光。两端的开窗将校园和城市的景色尽收眼底,也使“空中泳池”的明亮和轻盈达到了极致。

© 雷坛坛

© 吴清山

© 雷坛坛

© 雷坛坛

© 陈颢
中庭
两个漂浮的气囊之间是一个垂直的玻璃中庭,天窗将阳光带入12米高的楼梯间。从中庭可以观察到体育馆内丰富的活动。

© 雷坛坛

© 吴清山
食堂
位于首层的食堂是个完全透明的盒子,在这里可以一边吃饭,一边观赏到校园里的风景和各种活动——尤其是西侧的户外篮球场。考虑到空间也可以被分时共享,无论是桌椅的选择和排布,低矮的天花和明亮的照明设施都可以满足作为学习空间时的使用需求。

© 吴清山
双层表皮
双层表皮的设计是整座建筑的核心,内外表皮中间夹着大跨度的空间网架,在结构上悬挑出去,保障了室内的干净简洁,外观上看去又像是漂浮在空中。庞杂的机电管线也被收纳在立面之中,便于后期的检查和维修。通透的材质不仅制造了朦胧、轻盈的视觉效果,也作为有效的通风,帮助通常情况下能耗巨大的体育场馆减少空调的使用。

© 吴清山

© 吴清山

© 吴清山
当夜幕降临,游泳馆外立面的张拉膜通体发光,食堂里晚自习的灯光也从玻璃盒子中透出来,像一盏暖黄色的灯笼点亮了校园的一角,周围不再需要增加其他的照明设施。隐藏在双层表皮之间的钢架结构和机电设备也透过铝板的穿孔若隐若现,含蓄而抽象的图案,神秘而具有未来感,好像建筑可以自由呼吸。

© 吴清山

© 陈颢

轴测图 ©OPEN

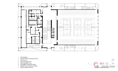
二层平面图 ©OPEN

剖面图 ©OPEN

墙身细节图 ©OPEN
设计时间:2016-2020
项目地点:中国,上海
甲方:上海题学教育科技有限公司
功能:体育馆、游泳馆、食堂
主持建筑师:李虎,黄文菁
设计团队:谭庆君、曹梦醒、卢笛、Daijiro NAKAYAMA、周亭婷、张浩、王萌萌、陈修远、林碧虹、冯青、朱天明、魏鲁南
合作设计院:上海原构设计咨询有限公司
结构、机电、幕墙顾问:建研科技股份有限公司
室内设计:OPEN建筑事务所
照明顾问:上海现代建筑装饰环境设计研究院有限公司
标识设计:北京天树文化艺术传播责任有限公司
泳池顾问:水一方(上海)环保科技有限公司
摄影:雷坛坛,吴清山,陈颢





























%E5%BB%BA%E8%AE%BE%E6%A0%87%E5%87%86.jpg?x-oss-process=image/interlace,1/quality,Q_100)








