一、编制说明
随着建筑业快速发展,高处作业吊篮(简称吊篮)用作高层和超高层建筑外墙施工的操作平台,得到了迅速发展和推广应用。近年来,吊篮坠落事故时有发生,坠落事故发生前也没有明显预兆,突发性强,且坠落迅速,作业人员往往无法逃生造成伤亡,安全风险大。习近平总书记多次强调,发展决不能以牺牲人的生命为代价,这必须作为一条不可逾越的红线。为进一步推动全省建筑施工安全风险分级管控和隐患排查治理双重预防机制建设,有效防范遏制各类生产安全事故的发生,实现全省建筑施工安全生产形势持续稳定好转,广东省住房和城乡建设厅委托广东省建筑安全协会组织编写了《建筑施工安全生产隐患识别图集》(高处作业吊篮工程部分)。
本图集依据法律法规、规范标准的最新要求,共分为编制说明、编制依据、资料管理类安全隐患、工程实体类安全隐患等4 部分。
其中:资料管理类安全隐患主要是分为专项施工方案、技术管理资料等2 个方面,工程实体类安全隐患分为构配件、悬挂机构、悬吊平台、安全装置、起升机构、电气控制系统、升降作业等7 个方面,精心选录了89 张有代表性的安全隐患照片,直观展示了高处作业吊篮工程常见隐患和问题,分析了可能导致的后果,并提出整改措施和规范要求及正确示例,让广大建筑施工专业技术人员和一线作业人员能准确、便捷、快速辨识吊篮工程中的隐患问题,并及时整改。本图集具有较强的科学性、指导性和实用性,可作为全省建筑施工吊篮工程隐患排查治理的重要参考,也可作为相关人员的培训教材和安全监督管理人员参考手册。
由于编制时间较紧,能力水平有限,如有不妥之处,敬请批评指正。
二、编制依据
2.1《建设工程安全生产管理条例》(中华人民共和国国务院令第393 号)
2.2《危险性较大的分部分项工程安全管理规定》(住建部令〔2018〕37 号)
2.3《危险性较大的分部分项工程专项施工方案编制指南》(建办质〔2021〕48 号)
2.4《房屋市政工程生产安全重大事故隐患判定标准(2022 版)》(建质规〔2022〕2 号)
2.5《广东省住房和城乡建设厅关于房屋市政工程危险性较大的分部分项工程安全管理的实施细则》(粤建规范〔2019〕2 号)
2.6《混凝土结构工程施工规范》(GB 50666-2011)
2.7《高处作业吊篮》(GB/T 19155-2017)
2.8《建筑施工安全检查标准》(JGJ 59-2011)
2.9《建筑施工高处作业安全技术规范》(JGJ 80-2016)
2.10《建筑施工工具式脚手架安全技术规范》(JGJ 202-2010)
2.11《建筑施工升降设备设施检验标准》(JGJ 305-2013)
2.12《建筑施工易发事故防治安全标准》(JGJ/T 429-2018)
2.13《高处作业吊篮安装、拆卸、使用技术规程》(JB/T 11699-2013)
三、资料管理类安全隐患
1、专项施工方案
| 序号 | 资料项目 | 隐患问题 | 规范和文件要求 |
| 1 | 专项施工方案编制 | 1.未编制专项施工方案;专项施工方案主要内容不满足《编制指南》的要求。 2.没有吊篮相关设计计算(抗倾覆、非标吊篮加固、支架支承结构承载力等)。 3.没有针对性的安全保障和应急处置措施。 4.欠缺必要的施工图纸(吊篮支架布置平面图、吊篮使用全高剖面图、吊篮落地停层平面图、吊篮安全绳固定点布置平面及大样图、非标吊篮加固设计大样图等)。 |
1.《广东省住房和城乡建设厅关于房屋市政工程危险性较大的分部分项工程安全管理的实施细则》(粤建规范〔2019〕2 号)第十一、十二条及附件1。 2.《危险性较大的分部分项工程专项施工方案编制指南》(建办质〔2021〕48 号)第四项。 |
| 2 | 审核审批手续 | 1.审核、审批程序不符合规定,审批人不符合要求。 2.未经总监理工程师审查。 3.属于超过一定规模的危大工程未组织专家论证。 4.论证专家未从专家库中抽取或专业不对口,人数不足5人。 5.专家论证报告未有明确意见。 6.对于论证意见为“修改后通过的”,未按专家意见修改,未经施工单位、监理单位重新审核审批和专家签字确认。 |
《广东省住房和城乡建设厅关于房屋市政工程危险性较大的分部分项工程安全管理的实施细则》(粤建规范〔2019〕2 号)中第十二条~第十五条、附件2。 |
| 3 | 专项施工方案交底和安全技术交底 | 1.专项施工方案实施前,编制人员或者项目技术负责人未向施工现场管理人员进行专项施工方案交底。 2.专项施工方案实施前,施工现场管理人员未向作业人员进行安全技术交底。 3.专项施工方案交底内容未包括施工工艺、材料、设备、施工流程、施工条件、安全技术措施、安全管理和应急处置措施等。 4.未有经双方签名确认的文字材料。 |
《广东省住房和城乡建设厅关于房屋市政工程危险性较大的分部分项工程安全管理的实施细则》(粤建规范〔2019〕2 号)第十七条。 |
2、技术管理资料
| 序号 | 资料项目 | 隐患问题 | 规范和文件要求 |
| 1 | 特种作业人员持证和上岗情况 | 1.建筑施工特种作业人员未持有效的特种作业操作资格证书。 2.持证上岗人数不满足专项施工方案要求。 |
1.《广东省住房和城乡建设厅关于房屋市政工程危险性较大的分部分项工程安全管理的实施细则》(粤建规范〔2019〕2 号)第十九条。 2.《高处作业吊篮安装、拆卸、使用技术规程》(JB/T 11699-2013)第6.2.3 条。 |
| 2 | 操作人员培训情况 | 吊篮操作人员未经培训和未提供培训记录。 | 1.《高处作业吊篮》(GB/T 19155-2017)第15.2.3条。 2.《高处作业吊篮安装、拆卸、使用技术规程》(JB/T 11699-2013)第6.2.3 条。 |
| 3 | 出厂资料 | 1.未提供产品的型式检验报告。 2.非标吊篮未经厂家确认。 3.未有产品合格证和使用说明书。 |
1.《高处作业吊篮》(GB/T 19155-2017)第13.3条。 2.《高处作业吊篮安装、拆卸、使用技术规程》(JB/T 11699-2013)第5.1.3 条。 |
| 4 | 安全装置 | 未提供安全锁合格证及检定报告。 | 1.《高处作业吊篮》(GB/T 19155-2017)第15.2.7条。 2.《高处作业吊篮安装、拆卸、使用技术规程》(JB/T 11699-2013)第6.3.2 条。 |
| 5 | 检查与验收 | 1.验收记录与现场施工进度不符。 2.参加验收人员不符合规定。 3.验收内容未有量化,责任人未签名。 4.验收后未设置验收标志牌。 5.未提供吊篮安装后的检验报告。 6.未提供检验判定不合格项的整改记录。 7.未经检测和验收合格即投入使用。 |
1.《广东省住房和城乡建设厅关于房屋市政工程危险性较大的分部分项工程安全管理的实施细则》(粤建规范〔2019〕2 号)第二十三条。 2.《高处作业吊篮安装、拆卸、使用技术规程》(JB/T 11699-2013)第6.2.7 条。 |
| 6 | 应急救援预案 | 1.未编制生产安全事故应急救援预案。 2.应急救援预案不符合工程实际情况。 |
《建设工程安全生产管理条例》(中华人民共和国国务院令第393 号)第四十八条。 |
四、工程实体类安全隐患
4.1【构配件】类隐患
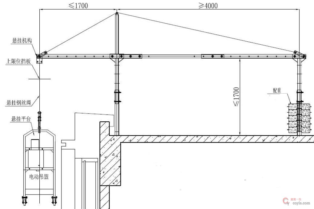
4.1.1 悬吊平台
- 【隐患】吊篮平台构件存在永久变形
- 【正确】吊篮平台构件符合要求
隐患问题:主要结构件存在永久变形。
风险分析:易造成主要结构件强度不足,导致悬吊平台失稳、整机倾覆。
整改措施:停止使用,更换变形的主要结构件。
规范要求:《高处作业吊篮安装、拆卸、使用技术规程》(JB/T 11699-2013)第5.1.4 条:对由可见裂纹的构件应进行修复或更换;对锈蚀、磨损和变形超标的构件应进行更换;对达不到原厂规定的零部件、紧固件的替代品一律进行更换。
4.1.2 悬挂机构-1
- 【隐患】吊篮悬挂机构梁锈蚀严重
- 【隐患】连接螺栓锈蚀严重
- 【正确】吊篮构件符合要求
隐患问题:吊篮构件锈蚀严重。
风险分析:锈蚀导致结构件强度不足,造成悬挂机构梁失稳破坏失稳,整机倾覆。
整改措施:停止使用,更换锈蚀悬挂机构梁和连接螺栓。
规范要求:《高处作业吊篮》(GB/T 19155-2017)第5.1.4 条:对由可见裂纹的构件应进行修复或更换;对锈蚀、磨损和变形超标的构件应进行更换;对达不到原厂规定的零部件、紧固件的替代品一律进行更换。
4.1.3 悬挂机构-2
- 【隐患】钢丝绳端部采用U 形绳夹固定
- 【隐患】钢丝绳端部采用U 形绳夹固定
- 【正确】钢丝绳端头形式采用金属压制接头及自紧楔型接头
隐患问题:钢丝绳端部采用U 形绳夹固定。
风险分析:易造成钢丝绳松动,导致固定失效。
整改措施:停止使用,按规范要求进行整改。
规范要求:《高处作业吊篮》(GB/T 19155-2017)第8.10.3.2 条:钢丝绳端头形式应为金属压制接头、自紧楔型接头等,或采用其他相同安全等级的形式。如失效会影响安全时,则不能使用U 型钢丝绳夹。
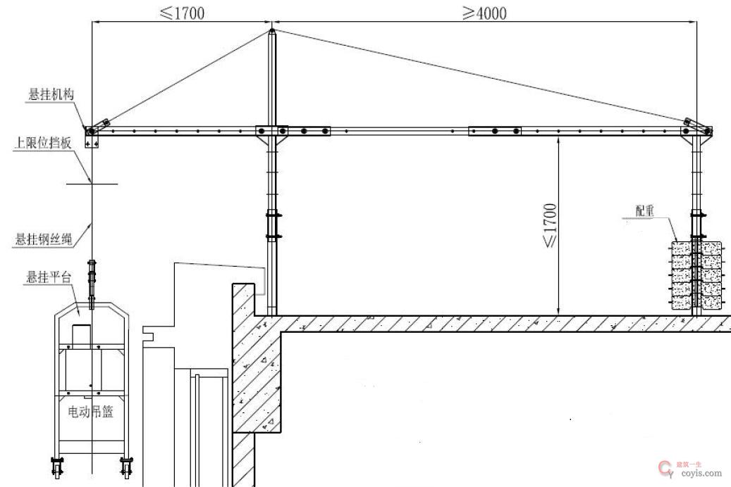
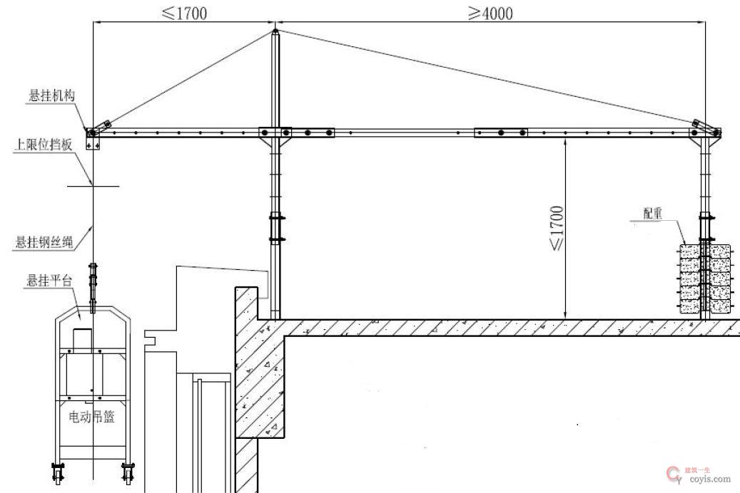
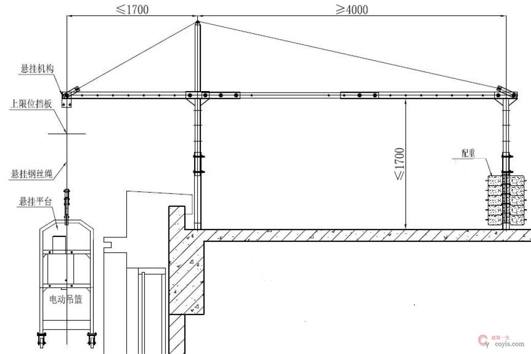
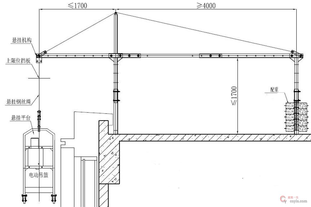
4.2【悬挂机构】类隐患
4.2.1 悬挂支架-1
- 【隐患】吊篮欠支架,横梁搁置在窗台飘板上
- 【隐患】吊篮欠支架,横梁搁置在窗台飘板上
- 【正确】吊篮支架设置规范
隐患问题:吊篮前支架缺失,横梁直接或垫木方搁置在窗台飘板上。
风险分析:吊篮支架容易失稳,造成吊篮倾覆。
整改措施:停止使用,按产品增设吊篮支架。
规范要求:《高处作业吊篮安装、拆卸、使用技术规程》(JB/T 11699-2013)第5.2.9 条:h)前后支架的组装高度与女儿墙高度相适应,不允许不安装前支架而将横梁直接担在女儿墙或其他支撑物上作为支点。
4.2.2 悬挂支架-2
- 【隐患】吊篮横梁搁置在女儿墙
- 【隐患】吊篮横梁搁置在飘板上
- 【正确】吊篮支架设置规范
隐患问题:吊篮前支架缺失,横梁直接搁置在女儿墙或飘板上。
风险分析:吊篮支架容易失稳,造成吊篮倾覆。
整改措施:停止使用,按产品增设吊篮支架。
规范要求:《高处作业吊篮安装、拆卸、使用技术规程》(JB/T 11699-2013)第5.2.9 条:h)前后支架的组装高度与女儿墙高度相适应,不允许不安装前支架而将横梁直接担在女儿墙或其他支撑物上作为支点。
4.2.3 悬挂支架-3
- 【隐患】吊篮前支架不稳固
- 【隐患】吊篮横梁直接搁置在女儿墙上
- 【正确】吊篮支架设置规范
隐患问题:吊篮前支架缺失或横梁直接搁置在女儿墙上。
风险分析:吊篮支架容易失稳,造成吊篮倾覆。
整改措施:停止使用,按产品增设吊篮支架。
规范要求:《高处作业吊篮安装、拆卸、使用技术规程》(JB/T 11699-2013)第5.2.9 条h):前后支架的组装高度与女儿墙高度相适应,不允许不安装前支架而将横梁直接担在女儿墙或其他支撑物上作为支点。
4.2.4 悬挂支架-4
- 【隐患】前支架与支撑面不垂直
- 【隐患】前支架与支撑面不垂直
- 【正确】吊篮支架设置规范
隐患问题:前支架与支撑面不垂直。
风险分析:造成前支架立杆和底部增加了弯矩作用,导致支架立杆变形或滑动造成整体失稳。
整改措施:停止使用,调整前支架的垂直度。
规范要求:《建筑施工工具式脚手架安全技术规范》(JGJ 202-2010)第5.4.13 条:悬挂机构前支架应与支撑面保持垂直,脚轮不得受力。
4.2.5 悬挂支架-5
- 【隐患】吊篮支架支承在女儿墙
- 【正确】吊篮支架设置规范
隐患问题:吊篮支架支承在女儿墙。
风险分析:支承面不牢固,吊篮支架容易失稳、倾覆。
整改措施:停止使用,将前支架支承在稳固的结构上。
规范要求:《高处作业吊篮安装、拆卸、使用技术规程》(JB/T 11699-2013)第5.2.9 条:d)前、后支架与支承面的接触应稳定牢固。
4.2.6 悬挂支架-6
- 【隐患】前后支架支承在钢管上
- 【隐患】前后支架支承在钢管上
- 【正确】吊篮支架设置规范
隐患问题:前后支架支承在钢管上。
风险分析:支承面不牢固,吊篮支架容易失稳倾覆。
整改措施:停止使用,将支架支承在稳固的结构上。
规范要求:《高处作业吊篮安装、拆卸、使用技术规程》(JB/T 11699-2013)第5.2.9 条:d)前、后支架与支承面的接触应稳定牢固。
4.2.7 悬挂支架-7
- 【隐患】悬挂支架大于标准产品高度未作加强措施
- 【隐患】悬挂支架大于标准产品高度未作加强措施
- 【正确】吊篮支架加固措施
隐患问题:悬挂支架大于标准产品高度未作加强措施。
风险分析:立杆长细比大刚度小,造成变形大导致失稳倾覆。
整改措施:停止使用,对超高支架采取增加剪刀撑、水平杆等加固措施。
规范要求:《高处作业吊篮安装、拆卸、使用技术规程》(JB/T 11699-2013)第5.2.9 条:h)当施工现场无法满足产品使用说明书规定的安装条件时,应采取相应的安全技术措施,确保抗倾覆力矩、结构强度和稳定性均达到标准要求。
4.2.8 悬挂支架-8
- 【隐患】后梁采用柔性拉结,钢丝绳端头使用U 型钢丝绳夹
- 【隐患】后梁采用柔性拉结,钢丝绳端头使用U 型钢丝绳夹
- 【正确】吊篮支架设置规范
隐患问题:吊篮未按产品说明书设置后支架+配重,后梁采用柔性拉结。
风险分析:吊篮不满足抗倾覆要求,容易左右摆动,晃动的吊篮威胁施工人员的安全,造成吊篮失稳倾覆。
整改措施:停止使用,按产品说明书增设后支架+配重,对超高支架采取增加剪刀撑、水平杆等加固措施。
规范要求:《高处作业吊篮安装、拆卸、使用技术规程》(JB/T 11699-2013)第5.2.9 条:h)当施工现场无法满足产品使用说明书规定的安装条件时,应采取相应的安全技术措施,确保抗倾覆力矩、结构强度和稳定性均达到标准要求。《高处作业吊篮》(GB/T 19155-2017)第8.10.3.2 条:钢丝绳端头形式应为金属压制接头、自紧楔型接头等,或采用其他相同安全等级的形式。如失效会影响安全时,则不能使用U 型钢丝绳夹。
4.2.9 悬挂支架-9
- 【隐患】吊篮未设置配重
- 【隐患】吊篮未设置配重
- 【正常】吊篮支架设置规范
隐患问题:吊篮未按产品说明书设置配重。
风险分析:吊篮不满足抗倾覆要求,易造成结构稳定性不足,导致吊篮失稳倾覆。
整改措施:停止使用,按产品说明书增设后支架,对超高支架采取增加剪刀撑、水平杆等加固措施。
规范要求:《高处作业吊篮安装、拆卸、使用技术规程》(JB/T 11699-2013)第5.2.9 条:d)前、后支架与支承面的接触应稳定牢固。第5.2.9 条h):当施工现场无法满足产品使用说明书规定的安装条件时,应采取相应的安全技术措施,确保抗倾覆力矩、结构强度和稳定性均达到标准要求。
4.2.10 悬挂支架-10
- 【隐患】超高悬挂支架加固措施不当
- 【正确】吊篮支架加固措施
隐患问题:超高悬挂支架加固措施不当。
风险分析:悬挂支架刚度不足,造成吊篮失稳倾覆。
整改措施:停止使用,对超高支架采取增加剪刀撑、水平杆等加固措施。
规范要求:《高处作业吊篮安装、拆卸、使用技术规程》(JB/T 11699-2013)第5.2.9 条:h)当施工现场无法满足产品使用说明书规定的安装条件时,应采取相应的安全技术措施,确保抗倾覆力矩、结构强度和稳定性均达到标准要求。
4.2.11 悬挂支架-11
- 【隐患】安全锁与悬吊平台未采用高强度螺栓连接
- 【正确】安全锁与悬吊平台采用高强度螺栓连接
- 【正确】安全锁与悬吊平台采用高强度螺栓连接
隐患问题:防坠落装置与悬吊平台未采用高强度螺栓连接。
风险分析:悬挂机构连接不可靠,造成构件连接处失稳,导致吊篮倾覆。
整改措施:停止使用,更换高强度螺栓连接。
规范要求:《高处作业吊篮安装、拆卸、使用技术规程》(JB/T 11699-2013)第5.2.11 条:c)螺栓应按要求加装垫圈,所有螺母均应紧固;提升机和安全锁与悬吊平台的连接应可靠,应采用专用高强螺栓进行连接。
4.2.12 悬挂支架-12
- 【隐患】后支架与横梁连接螺栓未使用高强度螺栓
- 【正确】后支架与横梁采用高强度螺栓连接
- 【正确】后支架与横梁采用高强度螺栓连接
隐患问题:后支架与横梁连接螺栓未使用高强度螺栓。
风险分析:悬挂机构连接不可靠,造成构件连接处失稳,导致吊篮倾覆。
整改措施:停止使用,更换高强度螺栓连接。
规范要求:《高处作业吊篮安装、拆卸、使用技术规程》(JB/T 11699-2013)第5.2.11 条:c)螺栓应按要求加装垫圈,所有螺母均应紧固;提升机和安全锁与悬吊平台的连接应可靠,应采用专用高强螺栓进行连接。
4.2.13 悬挂支架-13
- 【隐患】连接螺栓螺母长度不足
- 【隐患】支架连接螺栓螺母未紧固
- 【正确】连接螺栓螺母紧固
隐患问题:连接螺栓螺母长度不足或支架连接螺栓螺母未拧紧。
风险分析:易造成悬挂支架刚度不足,导致吊篮倾覆。
整改措施:停止使用,对上述问题进行整改。
规范要求:《高处作业吊篮安装、拆卸、使用技术规程》(JB/T 11699-2013)第5.2.11 条:c)螺栓应按要求加装垫圈,所有螺母均应紧固。
4.2.14 配重-1
- 【隐患】配重块未锁住以防止未授权人员拆除
- 【隐患】配重块未锁住以防止未授权人员拆除
- 【正确】用钢丝绳将配重块锁住
隐患问题:配重块未锁住以防止未授权人员拆除。
风险分析:配重块容易被人为拿走,吊篮配重数量不够,不满足抗倾覆要求,导致吊篮倾覆。
整改措施:停止使用,按吊篮方案配置配重块,用钢丝绳将配重块锁住,并加“严禁挪动”的警示标志。
规范要求:《高处作业吊篮》(GB/T 19155-2017)第9.2 条:c)用作悬挂装置配重的所有重物应是实心的(每块质量最大25kg)且有永久标记,禁止采用注水或散状物作为配重。第9.3.2 条:配重应坚固地安装在配重悬挂支架上,只有在需要拆除时方可拆卸。配重应锁住以防止未授权人员拆卸。
4.2.15 配重-2
- 【隐患】配重块不规范
- 【隐患】配重未有永久标记
- 【正确】配重有永久标记
隐患问题:配重块不规范、未有永久标记。
风险分析:易造成不满足抗倾覆要求,导致吊篮倾覆。
整改措施:停止使用,更换合格配重块,并按方案配置配重块数量和用钢丝绳将其锁紧固定。
规范要求:《高处作业吊篮》(GB/T 19155-2017)第9.2 条:c)用作悬挂装置配重的所有重物应是实心的(每块质量最大25kg)且有永久标记,禁止采用注水或散状物作为配重。
4.3 【悬吊平台】类隐患
4.3.1 悬吊平台-1
- 【隐患】悬吊平台其工作面未设置立面保护装置
- 【隐患】悬吊平台其工作面未设置立面保护装置
- 【正确】悬吊平台其工作面立面设保护装置
隐患问题:悬吊平台其工作面未设置具有立面保护装置。
风险分析:易产生较大的冲击力,导致安全事故。
整改措施:停止使用,增设立面保护装置。
规范要求:《高处作业吊篮》(GB/T 19155-2017)第7.7 条:悬吊平台在其工作面应具有立面保护装置。其形式可为靠墙轮或缓冲带。
4.3.2 悬吊平台-2
- 【隐患】产品铭牌标识不清
- 【正确】产品铭牌清晰
隐患问题:产品铭牌标识不清。
风险分析:产品铭牌标识不清,无法确定产品信息和参数,易违章造成使用,发生安全事故。
整改措施:停止使用,更换产品铭牌,完善产品信息。
规范要求:《高处作业吊篮》(GB/T 19155-2017)第14.1.1 条:b)所有平台和悬挂装置应有一个或多个清晰耐久的标记或标牌为用户提供完整产品信息。
4.4 【安全装置】类隐患
4.4.1 防坠落装置-1
- 【隐患】平台纵向倾斜角度大于14°防坠落装置未起作用
- 【正确】平台纵向倾斜角度13°防坠落装置起作用
隐患问题:平台纵向倾斜角度大于14°防坠落装置未起作用。
风险分析:使用过程中,平台失控,导致吊篮发生倾覆失落。
整改措施:停止使用,调整防坠落装置。
规范要求:《高处作业吊篮》(GB/T 19155-2017)第8.8.2.1 条:当工作钢丝绳失效、平台下降速度大于30mm/min、工作钢丝绳无负载或平台纵向倾斜角度大于14°等情况发生时,防坠落装置应能自动起作用。
4.4.2 防坠落装置-2
- 【隐患】安全锁未有标定时间
- 【正确】安全锁产品标牌
隐患问题:安全锁未按规定进行标定。
风险分析:当提升机故障或工作绳断裂时,悬吊平台发生坠落倾斜时无法锁定,导致吊篮发生倾覆坠落。
整改措施:停止使用,更换安全锁。
规范要求:《高处作业吊篮》(GB/T 19155-2017)第15.2.7 条:防坠落装置应在有效标定期限内使用,其有效标定期限不得超过一年。
4.4.3 防坠落装置-3
- 【隐患】安全锁无产品标牌
- 【正确】安全锁产品标牌
隐患问题:安全锁无产品标牌。
风险分析:当提升机故障或工作绳断裂时,悬吊平台发生坠落倾斜时无法锁定,导致吊篮发生坠落。
整改措施:停止使用,更换安全锁。
规范要求:《高处作业吊篮》(GB/T 19155-2017)第15.2.7 条:防坠落装置应在有效标定期限内使用,其有效标定期限不得超过一年。
4.4.4 防坠落装置-4
- 【隐患】安全锁损坏失效
- 【正确】安全锁完好无损
隐患问题:安全锁损坏失效。
风险分析:当提升机故障或工作绳断裂时,悬吊平台发生坠落倾斜时无法锁定,导致吊篮发生坠落。
整改措施:停止使用,更换安全锁。
规范要求:《建筑施工易发事故防治安全标准》(JGJ/T 429-2018)第5.8.5 条:4 吊篮的安全锁应完好无损,不得使用超过有效标定期的安全锁。
4.4.5 限位装置-1
- 【隐患】起升限位极限失效
- 【隐患】起升限位极限失效
- 【正确】起升限位极限正确定位
隐患问题:起升限位极限失效。
风险分析:吊篮在上升过程中出现冒顶现象,造成悬吊平台坠落。
整改措施:停止使用,调整起升限位极限。
规范要求:《高处作业吊篮》(GB/T 19155-2017)第8.3.10.1 条:应安装起升限位开关并正确定位。平台在最高位置时自动停止上升;起升运动应在接触终端极限限位开关之前停止。
4.4.6 限位装置-2
- 【隐患】起升限位开关、终端极限限位开关失效
- 【隐患】起升限位开关、终端极限限位开关失效
- 【正确】起升限位极限正确定位
隐患问题:起升限位开关、终端极限限位开关失效。
风险分析:吊篮在上升过程中出现冒顶现象,造成悬吊平台坠落。
整改措施:停止使用,调整起升限位极限。
规范要求:《高处作业吊篮》(GB/T 19155-2017)第8.3.10.1 条:应安装起升限位开关并正确定位。平台在最高位置时自动停止上升;起升运动应在接触终端极限限位开关之前停止。
4.4.7 限位装置-3
- 【隐患】未设置限位止挡板
- 【隐患】未设置限位止挡板
- 【正确】已设置限位止挡板
隐患问题:未设置限位止挡板。
风险分析:吊篮在上升过程中出现冒顶现象,造成悬吊平台坠落。
整改措施:停止使用,增设限位止挡板。
规范要求:《高处作业吊篮》(GB/T 19155-2017)第8.3.10.1 条:应安装起升限位开关并正确定位。平台在最高位置时自动停止上升;起升运动应在接触终端极限限位开关之前停止。
4.4.8 防倾斜装置
- 【隐患】未安装防倾斜装置
- 【正常】已安装防倾斜装置
隐患问题:未安装防倾斜装置。
风险分析:造成悬吊平台倾斜时无法制停,导致吊篮倾覆坠落。
整改措施:停止使用,增设防倾斜装置。
规范要求:《高处作业吊篮》(GB/T 19155-2017)第8.3.8 条:装有2 台或多台独立的起升机构应安装自动防倾斜装置,当平台纵向倾斜角度大于14°时,应能自动停止平台的升降运动。此装置可为电子式或机械式。
4.4.9 安全绳-1
- 【隐患】安全绳固定不可靠
- 【隐患】安全绳固定不可靠
- 【正确】安全绳固定在牢固结构上
隐患问题:安全绳固定在屋顶管道或花架柱上。
风险分析:安全绳固定不稳固,当吊篮坠落时,导致人员发生高坠。
整改措施:停止使用,将安全绳固定在牢固的结构体上。
规范要求:《高处作业吊篮安装、拆卸、使用技术规程》(JB/T 11699-2013)第5.2.12 条:i) 2)安全绳安装前应逐段严格检查有无损坏。将确定合格的安全绳独立地固定在屋顶可靠的固定点上;不得固定在吊篮的悬挂机构上,绳头固定应牢固。
4.4.10 安全绳-2
- 【隐患】安全绳固定不可靠
- 【隐患】安全绳固定不可靠
- 【正确】安全绳固定在牢固结构上
隐患问题:安全绳大固定不当。
风险分析:安全绳固定点不稳固,一旦发生吊篮坠落事故,也就造成人员坠落。
整改措施:停止使用,将安全绳固定在牢固的结构体上。
规范要求:《高处作业吊篮安装、拆卸、使用技术规程》(JB/T 11699-2013)第5.2.12 条:i) 2)安全绳安装前应逐段严格检查有无损坏。将确定合格的安全绳独立地固定在屋顶可靠的固定点上;不得固定在吊篮的悬挂机构上,绳头固定应牢固。
4.4.11 安全绳-3
- 【隐患】安全绳固定在悬挑机构上
- 【隐患】安全绳固定在钢丝绳上
- 【正确】安全绳固定在牢固结构上
隐患问题:安全绳固定在悬挑机构上或钢丝绳上。
风险分析:安全绳固定点不稳固,一旦发生吊篮坠落事故,也就造成人员坠落。
整改措施:停止使用,将安全绳固定在牢固的结构体上。
规范要求:《高处作业吊篮安装、拆卸、使用技术规程》(JB/T 11699-2013)第5.2.12 条:i) 2)安全绳安装前应逐段严格检查有无损坏。将确定合格的安全绳独立地固定在屋顶可靠的固定点上;不得固定在吊篮的悬挂机构上,绳头固定应牢固。
4.4.12 安全绳-4
- 【隐患】安全绳固定在轨道上
- 【隐患】同一位置固定多根安全绳
- 【正确】安全绳固定在牢固结构上
隐患问题:安全绳固定在轨道上或同一位置固定多根安全绳。
风险分析:安全绳固定不稳固,当吊篮坠落时,导致人员发生高坠。
整改措施:停止使用,将安全绳独立固定在牢固的结构体上。
规范要求:《高处作业吊篮安装、拆卸、使用技术规程》(JB/T 11699-2013)第5.2.12 条:i) 2)安全绳安装前应逐段严格检查有无损坏。将确定合格的安全绳独立地固定在屋顶可靠的固定点上;不得固定在吊篮的悬挂机构上,绳头固定应牢固。
4.4.13 安全绳-5
- 【隐患】安全绳磨损严重
- 【隐患】安全绳磨损严重
- 【正确】安全绳有防磨损措施
隐患问题:安全绳与女儿墙或建筑物结构的转角接触处磨损严重。
风险分析:易造成安全绳承载能力降低,甚至安全绳断裂,导致人员坠落。
整改措施:停止使用,更换安全绳,并在安全绳与女儿墙或建筑物结构的转角接触处增设防磨损措施。
规范要求:《高处作业吊篮安装、拆卸、使用技术规程》(JB/T 11699-2013)第5.2.12 条:i) 3)在安全绳与女儿墙或建筑物结构的转角接触处应采取有效的防护措施。
4.5【起升机构】类隐患
4.5.1 钢丝绳导向-1
- 【隐患】安全钢丝绳下端未安装重锤
- 【隐患】安全钢丝绳下端未安装重锤
- 【正确】安全钢丝绳重锤安装规范
隐患问题:安全钢丝绳下端未安装重锤。
风险分析:安全钢丝绳从安全锁脱落,导致吊篮坠落。
整改措施:停止使用,增设重锤。
规范要求:《高处作业吊篮安装、拆卸、使用技术规程》(JB/T 11699-2013)第5.2.12 条:f)安全钢丝绳的下端应安装重锤,以使钢丝绳绷直。重锤底部至地面高度(100~200mm 为宜)。工作钢丝绳安装重锤按使用说明书规定执行。
4.5.2 钢丝绳导向-2
- 【隐患】安全钢丝绳重锤采用杂物替代
- 【隐患】安全钢丝绳重锤采用杂物替代
- 【正确】安全钢丝绳重锤安装规范
隐患问题:安全钢丝绳重锤采用杂物替代。
风险分析:安全钢丝绳从安全锁脱落,导致吊篮坠落。
整改措施:停止使用,更换重锤。
规范要求:《高处作业吊篮安装、拆卸、使用技术规程》(JB/T 11699-2013)第5.2.12 条:f)安全钢丝绳的下端应安装重锤,以使钢丝绳绷直。重锤底部至地面高度(100~200mm 为宜)。工作钢丝绳安装重锤按使用说明书规定执行。
4.5.3 钢丝绳导向-3
- 【隐患】安全钢丝绳重锤设置不当
- 【隐患】安全钢丝绳重锤设置不当
- 【正确】安全钢丝绳重锤安装规范
隐患问题:安全钢丝绳重锤设置不当。
风险分析:吊笼升降过程中失控下坠。
整改措施:停止使用,增设重锤,并确保重锤底部至地面高度为100~200mm。
规范要求:《高处作业吊篮安装、拆卸、使用技术规程》(JB/T 11699-2013)第5.2.12 条:f)安全钢丝绳的下端应安装重锤,以使钢丝绳绷直。重锤底部至地面高度(100~200mm 为宜)。工作钢丝绳安装重锤按使用说明书规定执行。
4.5.4 钢丝绳导向-4
- 【隐患】钢丝绳防脱措施失效
- 【隐患】钢丝绳防脱措施失效
- 【正确】钢丝绳防脱措施规范
隐患问题:钢丝绳防脱措施失效。
风险分析:钢丝绳运行过程容易卡绳或磨损造成断绳事故。
整改措施:停止使用,完善防脱绳装置。
规范要求:《高处作业吊篮》(GB/T 19155-2017)第8.1.5.1 条:起升机构的设计应有防止钢丝绳在通过卷筒(或驱动绳轮)、后备装置、导向滑轮时脱出的措施。
4.5.5 钢丝绳导向-5
- 【隐患】钢丝绳与接口处摩擦
- 【隐患】钢丝绳与接口处摩擦
- 【正确】起升机构有良好的穿绳性能
隐患问题:钢丝绳与接口处摩擦。
风险分析:钢丝绳容易磨损造成断绳事故。
整改措施:停止使用,增设防摩擦措施。
规范要求:《高处作业吊篮》(GB/T 19155-2017)第8.1.5.2 条:起升机构应具有良好的穿绳性能,不得卡绳和堵绳。
4.5.6 起升机构连接
- 【隐患】起升机构与悬吊平台连接螺栓断裂
- 【隐患】起升机构与悬吊平台未用高强度螺栓连接
- 【正确】起升机构与悬吊平台采用高强度螺栓连接
隐患问题:起升机构与悬吊平台连接螺栓断裂或未用高强度螺栓连接。
风险分析:易造成构件间连接强度不足,连接不可靠,连接部位失稳,导致吊篮倾覆。
整改措施:停止使用,更换连接螺栓。
规范要求:《高处作业吊篮安装、拆卸、使用技术规程》(JB/T 11699-2013)第5.2.11 条:c)起升机构、防坠落装置与悬吊平台的连接应可靠,应采用专用高强度螺栓进行连接。
4.6 【电气控制系统】类隐患
4.6.1 电气保护
- 【隐患】未设置相序继电器
- 【隐患】未设置相序继电器
- 【正确】已设置相序继电器
隐患问题:未设置相序继电器。
风险分析:电源缺相、错相连接时导致错误的控制响应,易造成吊篮发生坠落事故。
整改措施:停止使用,设置相序继电器。
规范要求:《高处作业吊篮》(GB/T 19155-2017)第10.2.1 条:应设置相序继电器确保电源缺相、错相连接时不会导致错误的控制响应。
4.6.2 控制系统
- 【隐患】急停开关失效
- 【隐患】急停开关未标记明显的“急停”
- 【正确】急停开关设置规范
隐患问题:急停开关未标记明显的“急停”。
风险分析:无法停止吊篮控制系统运行,造成吊篮倾覆或坠落事故。
整改措施:停止使用,更换急停开关。
规范要求:《高处作业吊篮》(GB/T 19155-2017)第11.1.4 条:应提供停止吊篮控制系统运行的急停按钮,此按钮为红色并明显的“急停”标记,不能自动复位。急停按钮按下后停止吊篮的所有动作。
4.7 【升降作业】类隐患
4.7.1 标志
- 【隐患】无限载标志
- 【正确】有限载标牌
- 【正确】有限载标牌
隐患问题:无限载标志。
风险分析:无限载标志,作业人员易超载使用造成吊篮倾覆坠落。
整改措施:停止使用,设置限载标牌,并严格控制荷载。
规范要求:《高处作业吊篮安装、拆卸、使用技术规程》(JB/T 11699-2013)第6.2.5 条:C)严禁超载业。《高处作业吊篮标准》GBT19155-2017 第14.1.3 条:平台应标注a)根据平台尺寸,平台最大载重量和最多承载人数进行列表。
4.7.2 吊篮运行范围-1
- 【隐患】悬吊平台运行通道有障碍物
- 【隐患】悬吊平台运行通道有障碍物
- 【正确】设置停层平台
隐患问题:悬吊平台运行通道有障碍物。
风险分析:障碍物受冲击力失稳破坏,导致吊篮倾覆。
整改措施:停止使用,清除障碍物。
规范要求:《高处作业吊篮安装、拆卸、使用技术规程》(JB/T 11699-2013)第6.2.4 条:C)检查悬吊平台运行范围内有无障碍物。
4.7.3 吊篮运行范围-2
- 【隐患】悬吊平台运行通道有障碍物
- 【隐患】悬吊平台运行通道有障碍物
- 【正确】设置停层平台
隐患问题:悬吊平台运行通道有障碍物。
风险分析:操作人员进出困难,造成高处坠落。
整改措施:停止使用,清除障碍物。
规范要求:《高处作业吊篮安装、拆卸、使用技术规程》(JB/T 11699-2013)第6.2.4 条:C)检查悬吊平台运行范围内有无障碍物。
4.7.4 吊篮运行范围-3
- 【隐患】吊篮运行范围有单轨道
- 【隐患】吊篮运行范围有脚手架
- 【正确】吊篮运行范围无障碍物
隐患问题:吊篮运行范围有单轨道或脚手架,上下交叉作业。
风险分析:易造成吊篮与脚手架或与轨道电动葫芦链条发生干涉,导致脚手架坍塌和吊篮失稳、坠落。
整改措施:停止使用,拆除脚手架、轨道吊或重新布设吊篮。
规范要求:《高处作业吊篮安装、拆卸、使用技术规程》(JB/T 11699-2013)第6.2.4 条:C)检查悬吊平台运行范围内有无障碍物。
4.7.5 吊篮停层-1
- 【隐患】悬吊平台停层有障碍物
- 【隐患】悬吊平台停层有障碍物
- 【正确】悬吊平台停层规范
隐患问题:悬吊平台停层有障碍物。
风险分析:易造成悬吊平台失稳操作人员高处坠落。
整改措施:停止使用,清除障碍物,让吊篮停在地面,便于操作人员进出。
规范要求:《高处作业吊篮安装、拆卸、使用技术规程》(JB/T 11699-2013)第6.2.3 条:i)操作人员应在地面进出悬吊平台,不得在空中攀缘窗口出入。严禁作业人员从一悬吊平台跨入另一悬吊平台。
4.7.6 吊篮停层-2
- 【隐患】悬吊平台停层有障碍物
- 【隐患】悬吊平台停层有障碍物
- 【正确】悬吊平台停层规范
隐患问题:悬吊平台停层有障碍物。
风险分析:易造成悬吊平台失稳操作人员高处坠落。
整改措施:停止使用,清除障碍物,让吊篮停在地面,便于操作人员进出。
规范要求:《高处作业吊篮安装、拆卸、使用技术规程》(JB/T 11699-2013)第6.2.3 条:i)操作人员应在地面进出悬吊平台,不得在空中攀缘窗口出入。严禁作业人员从一悬吊平台跨入另一悬吊平台。
4.7.7 吊篮停层-3
- 【隐患】悬吊平台停层有障碍物
- 【隐患】悬吊平台停层有障碍物
- 【正确】悬吊平台无杂物
隐患问题:悬吊平台停层有障碍物。
风险分析:易造成悬吊平台失稳操作人员高处坠落。
整改措施:停止使用,清除障碍物,让吊篮停在地面,便于操作人员进出。
规范要求:《高处作业吊篮安装、拆卸、使用技术规程》(JB/T 11699-2013)第6.2.3 条:i)操作人员应在地面进出悬吊平台,不得在空中攀缘窗口出入。严禁作业人员从一悬吊平台跨入另一悬吊平台。
4.7.8 违规使用-1
- 【隐患】将吊篮作为垂直运输设备使用
- 【隐患】将吊篮作为垂直运输设备使用
- 【正确】悬吊平台无杂物
隐患问题:将吊篮作为垂直运输设备使用。
风险分析:易造成吊篮失稳、倾覆。
整改措施:停止使用,卸除物料,对相关人员进行安全教育。
规范要求:《高处作业吊篮安装、拆卸、使用技术规程》(JB/T 11699-2013)第6.2. 5 条:b)不准将吊篮作为垂直运输设备使用。
4.7.9 违规使用-2
- 【隐患】吊篮操作人员未佩戴安全带
- 【正确】安全带自锁器规范
- 【正确】吊篮操作人员佩戴安全带
隐患问题:吊篮操作人员未佩戴安全带。
风险分析:悬吊平台倾覆人员掉落。
整改措施:停止使用,操作人员应正确熟练地使用安全带、自锁器和安全绳。
规范要求:《高处作业吊篮安装、拆卸、使用技术规程》(JB/T 11699-2013)第6.2.3 条:对吊篮操作人员的基本要求如下:e)作业时应戴安全帽,使用安全带。并能正确熟练地使用安全带、自锁器和安全绳,安全绳上端固定应牢固可靠,使用时安全绳应基本保持垂直于地面,作业人员身后安全带余绳不得超过1m。
4.7.10 安全警戒
- 【隐患】地面未有安全警戒
- 【隐患】地面未有安全警戒
- 【正确】地面设有安全警示护栏
隐患问题:地面未有安全警戒。
风险分析:高空坠物。
整改措施:停止使用,增设警示线或安全护栏,必要时设置安全警戒人员。
规范要求:《高处作业吊篮安装、拆卸、使用技术规程》(JB/T 11699-2013)第6.2.1 条:h)在吊篮作业下方,应设置警示线或安全护栏,必要时设置安全警戒人员。






















































































































































